Descriere
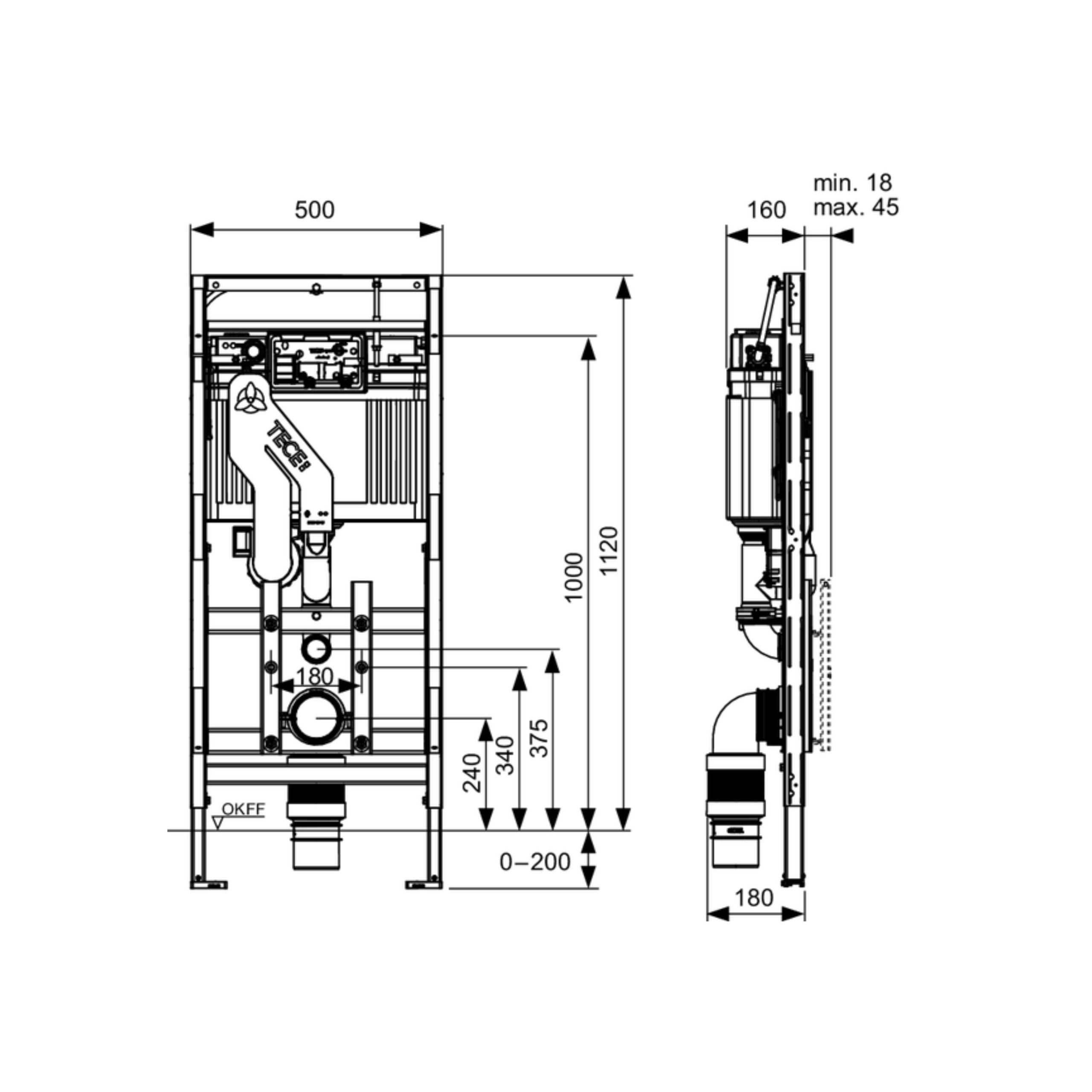
Modulul WC TECElux 400 este o soluție tehnică avansată pentru instalarea vaselor WC suspendate, oferind funcționalitate, flexibilitate în montaj și confort sporit în utilizare. Cu o înălțime de instalare de 1120 mm, acest modul este conceput pentru montaj în structuri TECEprofil, pereți cu structură metalică sau din lemn, dar și ca modul frontal sau de colț.
Un avantaj important al sistemului este posibilitatea de reglare ulterioară a înălțimii vasului WC cu până la 8 cm, fără lucrări majore de renovare. Această funcție permite adaptarea ergonomică a înălțimii toaletei chiar și după instalare.
Modulul include rezervorul WC TECE montat îngropat, cunoscut pentru fiabilitatea și durabilitatea sa. Sistemul este proiectat pentru utilizare împreună cu plăcile frontale din sticlă TECElux cu unitate de acționare, oferind un design modern și elegant.
Un element distinctiv al acestui modul este sistemul integrat de extragere a mirosurilor Ceramic-Air, care aspiră aerul direct din vasul WC și îl trece printr-un cartuș filtrant cu durată mare de viață. Sistemul funcționează silențios și contribuie la menținerea unui aer proaspăt în baie, fără necesitatea unei ventilații suplimentare.
Modulul este potrivit atât pentru instalări noi, cât și pentru proiecte de renovare, oferind flexibilitate în integrarea în diferite tipuri de construcții și sisteme de montaj.
Avantaje principale
modul WC pentru montaj încastrat în structuri TECEprofil sau pereți cu structură metalică/lemn
reglare ulterioară a înălțimii vasului WC cu până la 8 cm
rezervor TECE încastrat fiabil și durabil
sistem Ceramic-Air pentru extragerea mirosurilor cu nivel redus de zgomot
cartuș filtrant cu durată mare de viață
compatibil cu plăcile frontale din sticlă TECElux
potrivit pentru montaj frontal sau în colț
ideal pentru proiecte moderne de baie
Notă
Sistemul de extragere a mirosurilor Ceramic-Air poate fi utilizat cu majoritatea vaselor ceramice. Totuși, în cazul anumitor modele cu poziție mai înaltă a șezutului sau margini ridicate, apa de spălare poate rămâne în conducta de evacuare și vasul ceramic se poate umple parțial sau complet. Manualul tehnic TECE oferă lista vaselor pentru care funcția de extragere a mirosurilor nu este compatibilă.











Recenzii
Nu există recenzii până acum.